ISCRIZIONE PROFESSIONISTI
ProntoPro
Pratiche Catastali
Ascoli Piceno
Ascoli Piceno
Andrea Morganti
Pratiche Catastali
·
registrato 1 anno/i fa
Ascoli Piceno
Ascoli Piceno
INIZIA
Feedback dei clienti
Richiedi preventivi per prendere visione delle recensioni.
Controlli di sicurezza
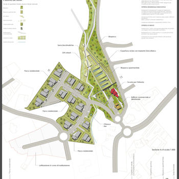
Ho un esperienza ventennale nel settore tecnico/edile in quanto ho intrapreso parallelamente agli studi universitari una formazione pratica in molti studi tecnici (prima di Geometri, poi di Architetti), in una impresa e collaborato con diverse figure professionali ed enti (Comune di Ascoli, Università di Camerino,Coni Provinciale ,Regionale e Nazionale) dove ho conseguito esperienza di catasto, di rilievo topografico/architettonico, di progettazione pubblica e privata sia a grande scala (Masterplan, Comparti residenziali, Lottizzazioni,Impianti sportivi) che progettazione di interni, attività di tecnico e di coordinatore per la sicurezza nei cantieri e contabilità, di grafica e modellazione tridimensionale e rendering.
X
Ottieni 4 preventivi per Pratiche Catastali dai Professionisti disponibili e confrontali.
1601 Geometri Pratiche Catastali sono pronti a fornire il proprio servizio.
INIZIA
Richiedi un preventivo >
Ottieni fino a 4 preventivi per Pratiche Catastali