ISCRIZIONE PROFESSIONISTI
ProntoPro
Geometra
Torino
Torino
Geom. Carlotta Amodeo
Geometra
·
registrato 4 anno/i fa
Torino
Torino
INIZIA
Feedback dei clienti
Richiedi preventivi per prendere visione delle recensioni.
Controlli di sicurezza
Indirizzo e-mail valido
Indirizzo valido
Carta d'identità valida
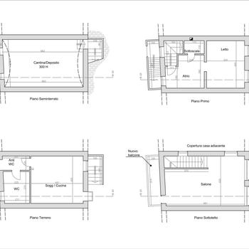
Sono iscritta al Collegio dei Geometri della Provincia di Torino. Mi occupo di progettazione edilizia, catasto, rilievi architettonici e restituzione grafica. PROGETTAZIONE EDILIZIA - Pratiche edilizie presso Pubblica Amministrazione e accesso agli archivi edilizi (Comuni) - Ampliamenti e ristrutturazione immobili esistenti - Frazionamenti immobiliari - Manutenzione straordinaria e ordinaria - Ridistribuzione spazi interni e studio arredamento di interni CATASTO - Visure catastali immediate con servizio telematico - Richiesta telematica di estratti mappa aggiornati - Recupero schede catastali - Redazione Do.C.Fa e invio telematiche di pratiche catastali RILIEVI E RESTITUZIONE GRAFICA - Rilievi architettonici con restituzione grafica di fabbricati civili ed industriali, locali commerciali - Restituzione grafica da planimetria esistente Nelle immagini allegate ci sono esempi di: - intestazioni, sia per quanto riguarda la consegna delle pratiche cartacee, sia per gli elaborati grafici; - restituzioni grafiche
X
Ottieni 4 preventivi per Geometra dai Professionisti disponibili e confrontali.
5047 Geometri sono pronti a fornire il proprio servizio.
INIZIA
Richiedi un preventivo >
Ottieni fino a 4 preventivi per Geometra