ISCRIZIONE PROFESSIONISTI
ProntoPro
Architetto
Perugia
Perugia
Martina Spaccia
Architetto
·
registrato 4 mese/i fa
Perugia
Perugia
INIZIA
Feedback dei clienti
Richiedi preventivi per prendere visione delle recensioni.
Controlli di sicurezza
Numero di telefono cellulare valido
Carta d'identità valida
Fondazione / Data di inizio
2021
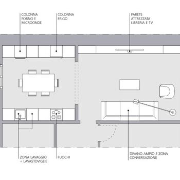
Architetto professionista nel settore dell'architettura e dell'interior design. L’esperienza di collaborazione con studi di architettura ed interior design, la partecipazione alla progettazione di numerosi progetti d’interni, riguardanti l’ambito residenziale, turistico/recettivo e retail, hanno permesso di maturare competenza e attenzione in ogni dettaglio nell’elaborazione di un progetto completo, dettagliato e adatto ad ogni esigenza.
X
Ottieni 5 preventivi per Architetto dai Professionisti disponibili e confrontali.
2356 Architetti sono pronti a fornire il proprio servizio.
INIZIA
Richiedi un preventivo >
Ottieni fino a 5 preventivi per Architetto